Make a Call : +8615559090996
Get A Estimate : senko@fjsenko.com
UMLinha de produção de blocos de parede e piso com racks de aço para tijolos. É um sistema automatizado de equipamentos utilizado na produção de revestimentos cerâmicos para paredes e pisos. Ele permite a operação contínua do processo produtivo, incluindo uma série de etapas, desde a colocação, transporte, cura e processamento dos revestimentos até a embalagem do produto final, melhorando a eficiência da produção e a qualidade do produto. Ao incorporar um mecanismo de cura, o sistema utiliza não apenas um motor transportador para movimentar os revestimentos, mas também uma bomba d'água externa conectada a uma fonte de água para cura e bicos de cura. Um soprador, equipado com lâminas de ar, remove rapidamente a água da superfície dos revestimentos.
Linha de produção de blocos de parede e piso com racks de aço para tijolos.(Modelo:QDZX-2000)
Linha de produção de tijolos totalmente automatizada, linha de produção de azulejos para paredes e pisos.
Layout dos Projetos:
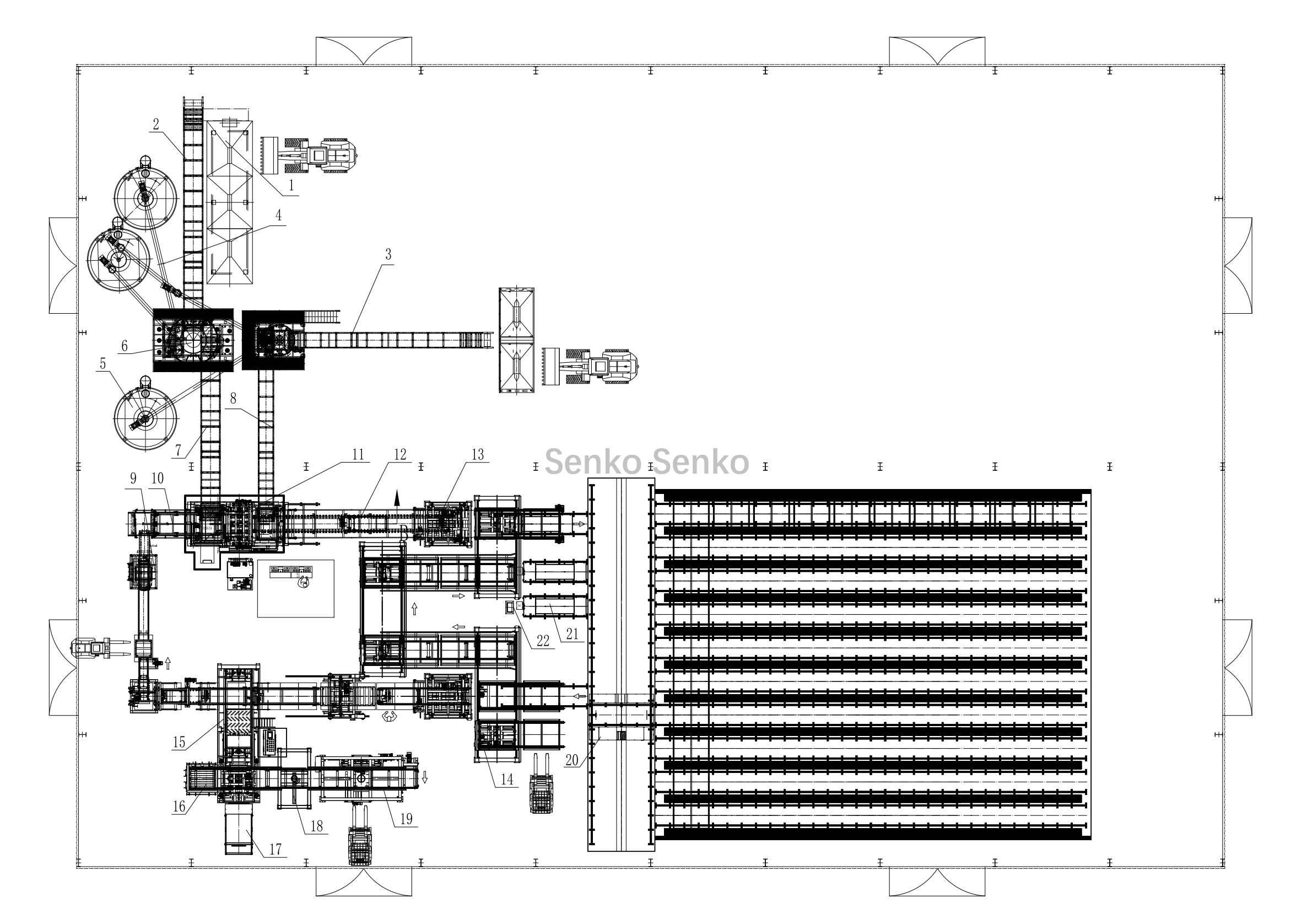
Solução um: O forno de cura tem apenas uma abertura lateral, e esta está voltada para o resto da máquina.

| 1. Máquina de dosagem | 2. Transportador de material base | 3. Transportador de material base | 4. Transportador espiral | 5. Transportador espiral | 6, Misturador |
| 7. Transportador de material base | 8. Transportador de material base | 9, Alimentador hidráulico de paletes | 10, Alimentador de paletes | 11. Máquina de formação de blocos | 12, Transportador de blocos |
| 13. Empilhadeira de paletes | 14, Transferência de rack | 15, Empilhador de blocos | 16. Bandeja de madeira para armazenamento | 17. Máquina de embalagem de filme | 18, Máquina de deitar filme |
| 19. Máquina de decapagem rotativa superior | 20,RGV | 21, Carrinho de transferência | 22, Estação de carregamento |
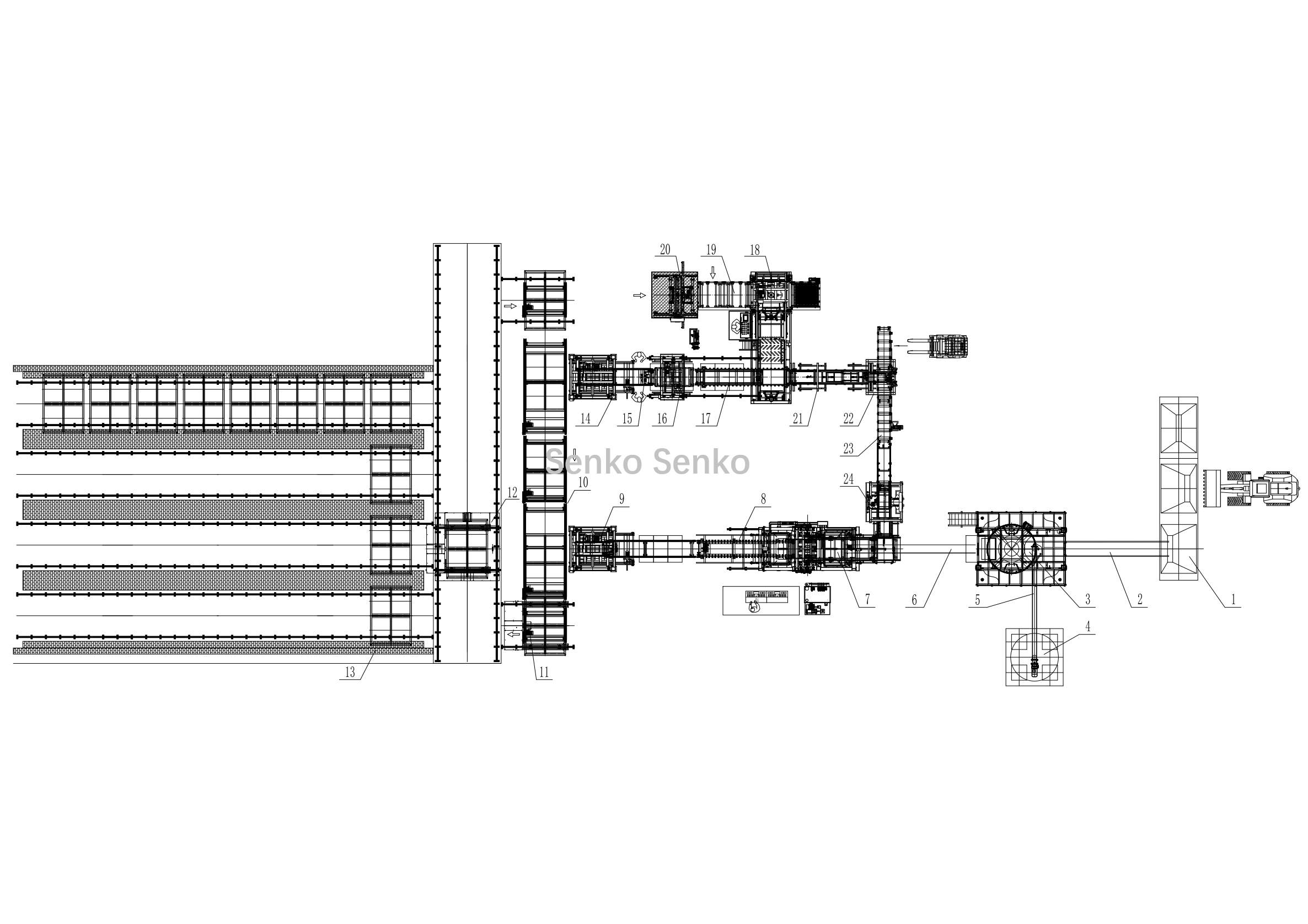
Solução dois:O forno de cura possui apenas uma abertura lateral, e esta está voltada para o restante da máquina.

| 1. Máquina de dosagem | 2. Transportador de material base | 3, Misturador | 4. Silo de cimento | 5, Transportador de cimento | 6, Transportador de mistura |
| 7. Máquina de conformação | 8, Transportador de paletes | 9. Carregamento de paletes em estantes | 10, transferência de rack | 11, alimentação em rack no RGV | 12, carrinho de transferência RGV |
| 13, Forno de cura de blocos | 14. Descarregamento de paletes da estante | 15, Esteira transportadora antes do elevador | 16, Elevador de paletes | 17. Separador de blocos e paletes | 18. Máquina de empilhamento de blocos |
| 19, Transportador de pilha | 20. Máquina de embalagem e desempacotamento | 21, Esteira transportadora de paletes vazias | 22, Paletizador | 23, Transportador de paletes | 24, Carregamento de paletes |
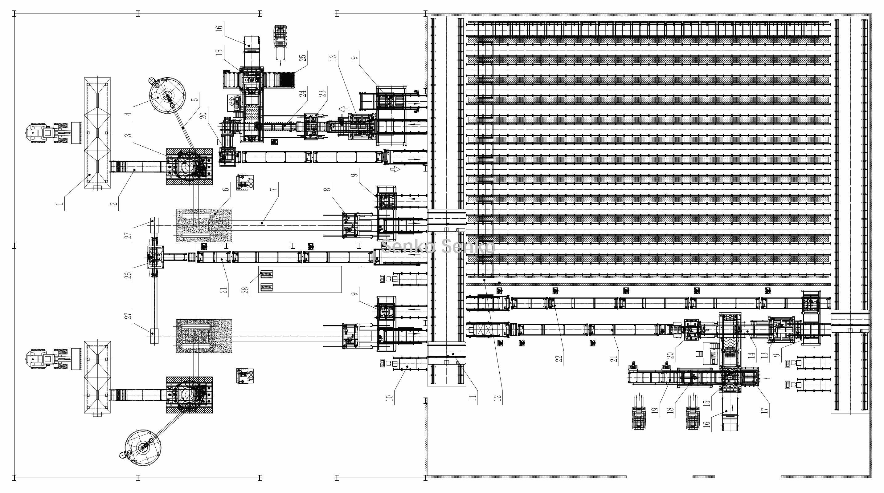
Solução três: Um forno de cura com dois conjuntos de máquinas de moldagem e embalagem para diferentes tipos de produtos.

| 1. Máquina de dosagem | 2. Transportador de material base | 3, Misturador | 4, Silo de cimento | 5, Transportador espiral | 6. Máquina de conformação |
| 7, Transportador de paletes de tijolos | 8. Alimentação de paletes em racks | 9, Unidade de transferência de rack | 10, Carrinho de transferência | 11,RGV | 12, Forno de cura |
| 13. Descarregamento de paletes da estante | 14. Separador de tijolos e paletes | 15, Empilhador de tijolos | 16, Máquina de colocar filme | 17, Estrutura para armazenamento de bandejas | 18, Unidade de embalagem em filme |
| 19, Máquina de descascar | 20, Paletizador vazio | 21, Transportador de paletes | 22, Esteira transportadora de prateleiras vazias | 23, Elevador de paletes de tijolos | 24, Transportador de paletes de tijolos |
| 25, Máquina de descascar | 26. Alimentação de paletes na linha de produção. | 27, Estrutura para armazenamento de paletes |
Vantagens do produto:
1. Melhorar a eficiência da produção: Os processos de produção automatizados reduzem a intervenção manual e a intensidade da mão de obra, permitindo uma produção contínua e eficiente, o que aumenta consideravelmente a produção de azulejos para paredes e pisos;
2. Garantir a qualidade do produto: O carregamento preciso, o transporte e o controle do processamento das peças, bem como um ambiente de cura estável, ajudam a garantir os indicadores de qualidade dos revestimentos de parede e piso, como precisão dimensional, planicidade e resistência, e reduzem a taxa de defeitos.
3. Reduzir os custos de produção: Embora o investimento em equipamentos seja grande, a longo prazo, ele pode reduzir efetivamente o custo de produção por unidade, melhorando a eficiência da produção e reduzindo os custos de mão de obra e o desperdício de matéria-prima;
4. Melhorar a segurança da produção: Reduz o contato direto entre humanos e processos de produção perigosos, como operação em alta temperatura e alta velocidade, diminui a incidência de acidentes de trabalho e melhora a segurança do processo produtivo.
Cenários de aplicação

TAGS :