Make a Call : +8615559090996
Get A Estimate : senko@fjsenko.com
UMlinha de produção de tijolos a partir de resíduos sólidos É um sistema que converte resíduos sólidos em tijolos de construção. Ele emprega tecnologia de vibração modulada em frequência e amplitude para alcançar alta densidade e economia de energia em tijolos reciclados não queimados. Nossa máquina de fabricação de tijolos a partir de resíduos pode produzir diversos tipos de tijolos reciclados não queimados e pode ser moldada de acordo com as necessidades.
Linha de produção de tijolos/blocos a partir de resíduos sólidos (Modelo:GFZX-2000)
Linha de produção de tijolos totalmente automatizada, linha de produção de tijolos a partir de resíduos sólidos, linha de produção de resíduos sólidos da construção civil.
Layout dos Projetos:
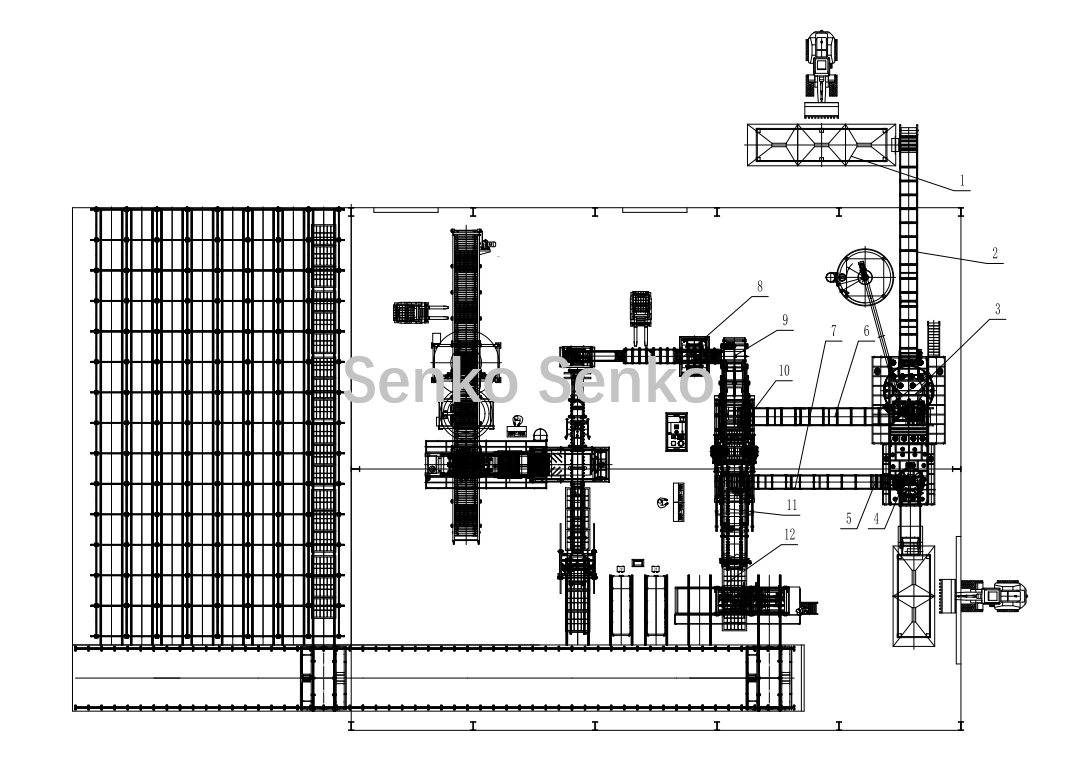
Solução um: TO forno de cura possui uma abertura lateral e está posicionado paralelamente aos demais equipamentos.

| 1. Máquina de dosagem | 2. Transportador de matéria-prima | 3. Misturador de material base | 4, Misturador de Pigmentos | 5. Tela vibratória | 6, Transportador de mistura base |
| 7. Transportador de mistura de pigmentos | 8. Carregamento de paletes | 9. Alimentador de paletes | 10. Máquina de conformação | 11, Esteira transportadora | 12. Máquina de empilhamento |
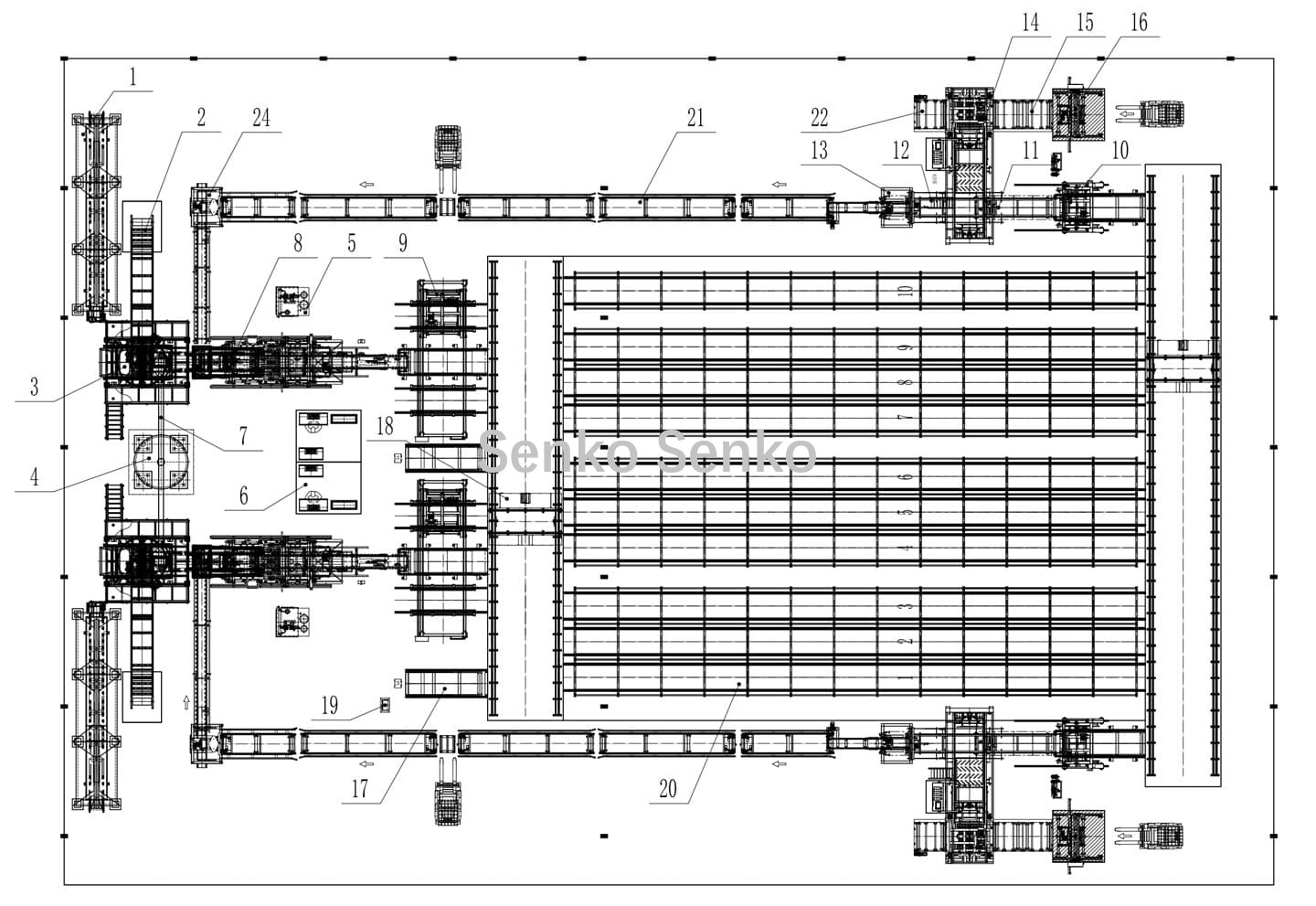
Solução dois: O forno de cura tem uma entrada e uma saída. A entrada do forno de cura está voltada para o restante das máquinas.

| 1. Máquina de dosagem | 2. Transportador de material base | 3, Misturador | 4, Silo de cimento | 5, Tanque de óleo |
| 6, Gabinete de controle E | 7, Transportador espiral | 8. Máquina de conformação | 9. Paletizador com tijolo | 10, Elevador de paletes |
| 11, Separador de paletes de tijolos | 12, Esteira transportadora de paletes vazias | 13. Paletizador sem tijolo | 14, Empilhador de tijolos | 15, Transportador de pilhas |
| 16. Máquina de decapagem rotativa inferior | 17, Carrinho de transferência | 18,RGV | 19, Estação de carregamento | 20, Forno de cura |
| 21. Sistema de reciclagem de paletes vazios | 22, Suporte para bandejas | 24, Carregamento hidráulico de paletes |
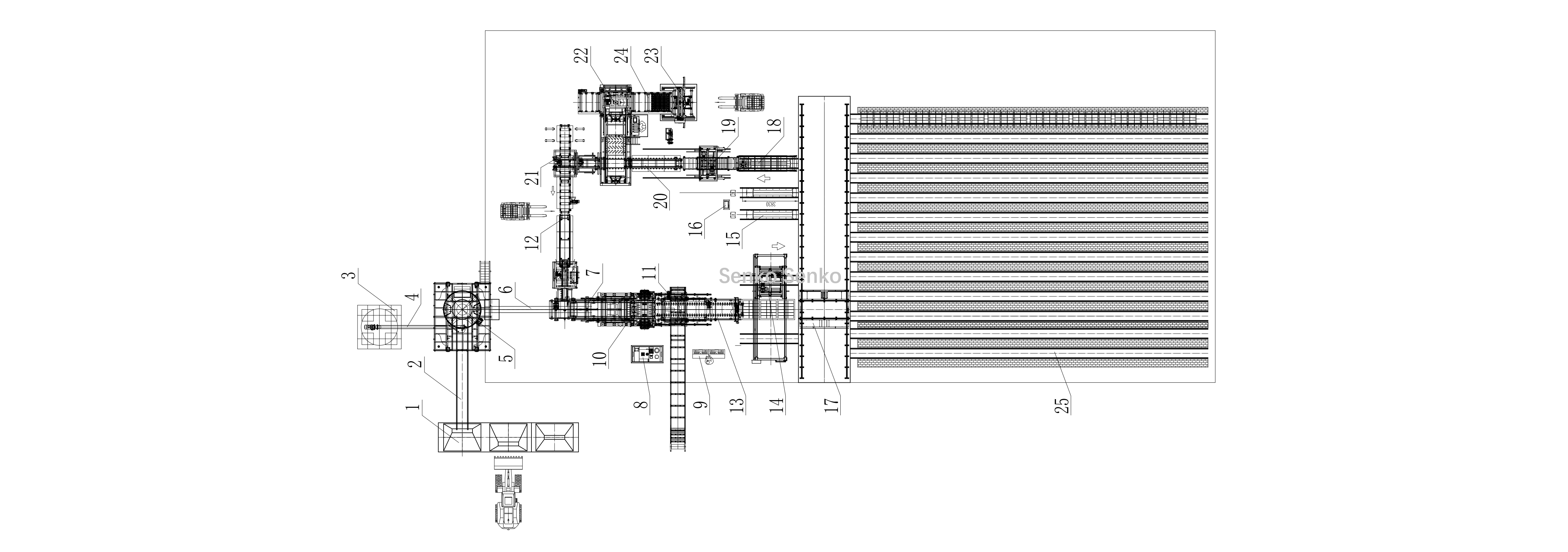
Solução três:TO forno de cura tem uma abertura lateral, voltada para o restante das máquinas.

| 1. Máquina de dosagem | 2. Transportador de material base | 3. Tanque de armazenamento de material Bas | 4. Transportador espiral | 5. Misturador de materiais básicos |
| 6, Transportador de mistura Bas | 7. Carregamento de paletes | 8. Estação hidráulica | 9, Sistema de controle eletrônico | 10, Alimentador de paletes |
| 11. Máquina de conformação | 12. Reciclagem de paletes | 13. Transferência de paletes | 14, Paletizador | 15, carrinho de transferência |
| 16. Estação de carregamento | 17, RGV | 18, Transportador de paletes | 19, Empilhadeira de paletes | 20, Transportador de paletes de tijolos |
| 21, Paletizador | 22, Máquina de empilhar tijolos | 23, Vedação rotativa inferior | 24, Transportador de pilha | 25, Forno de cura |
Vantagens do produto:
1. As matérias-primas são baratas, amplamente disponíveis e têm baixos custos de transporte. As máquinas de fabricação de tijolos são relativamente baratas e contam com o apoio de políticas nacionais, resultando em benefícios sociais e econômicos significativos.
2. Os tijolos produzidos apresentam alta resistência e bom desempenho, economizando recursos de terra de forma eficaz e promovendo o ajuste estrutural da indústria de materiais de construção para paredes.
Cenários de aplicação

TAGS :