Make a Call : +8615559090996
Get A Estimate : senko@fjsenko.com
A empilhadeira inteligente de tijolos e blocos é um equipamento de empilhamento inteligente projetado com tecnologia patenteada, com espaços reservados para o arranjo de empilhamento. Este sistema de empilhamento de tijolos/blocos resolve os problemas de empilhamento manual, alta intensidade de trabalho, baixa eficiência de produção e baixa mecanização do carregamento e descarregamento do produto acabado nas linhas de produção de blocos convencionais. Este equipamento é o mais recente sistema de empilhamento rápido desenvolvido. Em geral, este sistema é instalado de forma independente próximo à câmara de cura do produto. Para produtos bem curados, eles podem ser empilhados no local ou conectados à linha de produção de blocos para realizar o empilhamento em tempo real.
Empilhadeira de blocos/tijolos totalmente servo (Modelo: MDJ-Z1200A))
A máquina completa consiste em um elevador de paletes para tijolos/blocos curados, uma unidade principal de empilhamento, uma máquina de empurrar/virar paletes, uma paletizadora, etc., para obter um palete sem fundo para o empilhamento de tijolos. Toda a máquina é acionada por servomotores e energia pneumática, e o acionamento elétrico possui regulação de velocidade por frequência variável, o que lhe confere características de inteligência, estabilidade, velocidade, baixo consumo de energia e tamanho compacto. Esta linha de produção possui um alto grau de automação geral, e todo o processo é controlado por um painel computadorizado, o que não só reduz os custos de mão de obra, como também aumenta a eficiência e a produção.

Máquina de elevação para paletes carregados com tijolos/blocos
As placas de tijolos trazidas pela empilhadeira, cada palete carregado com tijolos/blocos já assentados, são transportadas para a área de reserva de paletes. A empilhadeira pega sequencialmente os paletes de tijolos, camada por camada, pela frente e por trás, de cima para baixo, e os envia para a esteira antes da separação dos tijolos/blocos dos paletes.

Plataforma giratória 1 e empurrador de tijolos/blocos
O empurrador 1 empurra os tijolos/blocos do palete para fora do palete e para dentro da plataforma giratória 1. A plataforma giratória 1 pode girar 90° para mudar de direção de acordo com as necessidades de empilhamento dos tijolos/blocos, e o empurrador 2 empurra os tijolos/blocos para dentro da máquina de empilhamento principal.

Máquina de empilhamento principal
O empurrador 3 empurra os tijolos/blocos alimentados para a plataforma de paletização, que avança até a posição de empilhamento. O empurrador 4 desce, parando os tijolos/blocos na plataforma, que então recua, fazendo com que os tijolos/blocos caiam e se empilhem sequencialmente, formando um palete. O empurrador 4 é controlado por um servomotor, que permite a utilização de orifícios para empilhadeira. Após a formação do palete, este desce até a base, onde roletes o transportam para o agrupamento horizontal e vertical e para a embalagem com cintas de aço revestidas com PET.

Empurrador/Virador de Paletes
Após a separação dos tijolos, o palete vazio é transportado por uma corrente. Um mecanismo de basculamento pode ser configurado na esteira transportadora para virar o palete vazio, que então é empurrado para dentro da paletizadora.

Máquina de paletização/Máquina de empilhamento de paletes
Paletes vazias são empurradas uma a uma e descem para serem empilhadas. Depois de empilhadas, as paletes descem até a parte inferior e a esteira as envia para fora, onde são recolhidas por uma empilhadeira.
Exibição da estrutura:
Informações sobre os parâmetros:
| Item | Especificação |
| Tamanho do equipamento | 16000×7000×3200mm |
| Potência Total | 33 kW |
| Altura máxima do produto | 200 mm (Personalizável) |
| Faixa de tamanho da bandeja | 1400-850mm (Personalizável) |
| Forma de empilhamento | Empilhamento cruzado retangular ou quadrado |
| Ciclo de empilhamento | 18-23 segundos por camada |
| Tamanho máximo de empilhamento | 1200×1200×1450mm |
| Potência do motor do elevador de empilhamento | 7,5 kW |
| Potência do motor de empurrar (primeiro, segundo e terceiro empurrão) | 2,2 kW |
| Potência do motor do prato giratório empilhável | 1,1 kW |
| Potência do motor do prato giratório | 0,75 kW |
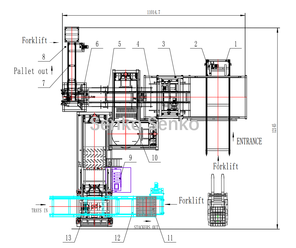
Layout do Projeto

| 1. Estrutura para descarregamento de paletes | 2. Reciclagem de molduras | 3. Elevador de paletes | 4. Transportador de paletes | 5. Esteira transportadora de paletes vazias |
| 6. Máquina de paletização | 7. Esteira transportadora de paletes | 8. rolo transportador | 9. Gabinete de controle eletrônico | 10. Unidade giratória |
| 11. Bandeja para empilhar tijolos/blocos | 12. Receptor de pilha | 13. Máquina de empilhamento principal |
Vantagens do produto:
1. Automação eficiente: substitui completamente a operação manual, realizando automaticamente a separação, o empilhamento e a transferência, economizando mão de obra e melhorando a eficiência da produção.
2. Orifício ajustável para empilhadeira: orifícios para empilhadeira são reservados para cada camada de produtos, o que facilita o carregamento e descarregamento subsequentes com empilhadeira, economizando custos com paletes.
3. Operação totalmente automática: não é afetada pelas condições climáticas, opera de forma eficiente por longos períodos e é adequada para diversos ambientes de produção.
4. Carregamento e descarregamento eficientes e com baixo nível de danos: o carregamento e descarregamento subsequentes com empilhadeira apresentam alta eficiência e não danificam os tijolos, um resultado notável.
5. Função de arranjo e rotação flexíveis: rotação antes do furo, disposição livre dos moldes, para atender às diferentes necessidades do produto.
Produtos curados empilhados:

TAGS :